Seaside 991 – Horst Custom Homes

Seaside 991 – Horst Custom Homes

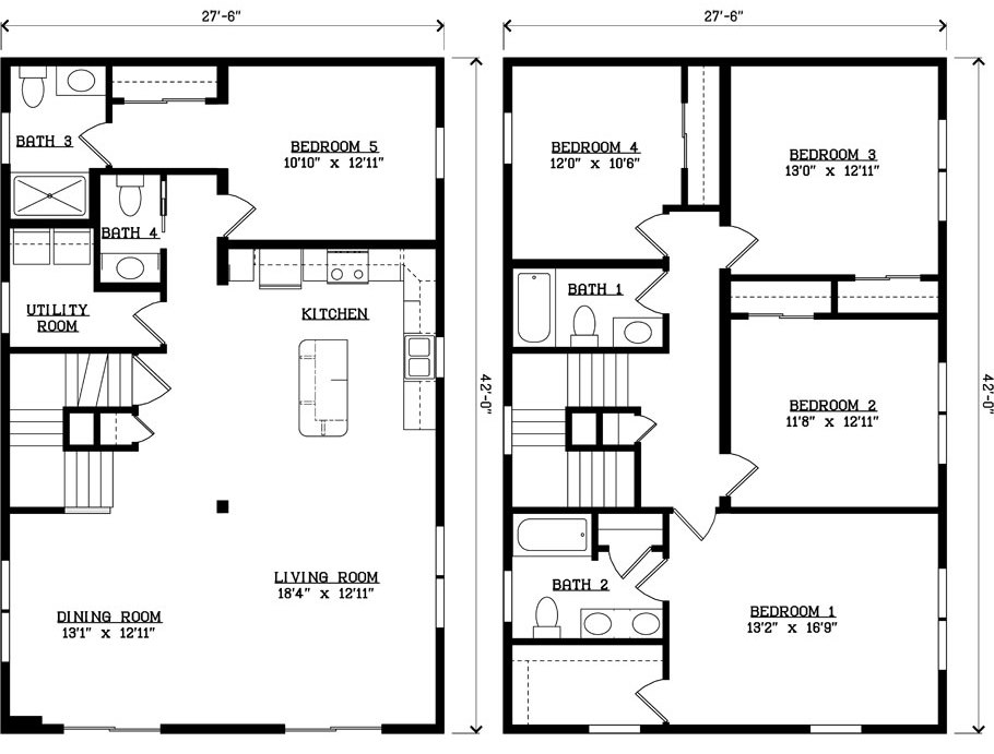
Seaside 991 – Horst Custom Homes is a 5 bedroom 3.5 bathroom home with 2184 square feet and two stories.

Description

Seaside 991 – Horst Custom Homes is a 5 bedroom 3.5 bathroom home with 2184 square feet and two stories.

Additional information

Bathrooms

3 1/2

Bedrooms

5

Size

42' x 27'6"

Sq Ft

2184

# of Levels

Two Story